Оренда будівлі у Центрі міста / м. А.Бекетова/ Площа 1314,9 м2 (№ 15-108-673)
Ціна: 10 520 $ + комунальні

Характеристики
Ціна: | 10 520 $ + комунальні |
---|---|
№ об'єкта: | 15-108-673 |
Поверх: | 1 / 4 |
Площа: | 1314,9 м2 |
Додатково: | окремий вхід, парковка |
Адреса: Харківська, Харків, Київський, Нагорний, ул. Черноглазовская, 8Б, м. Архітектора Бекетова
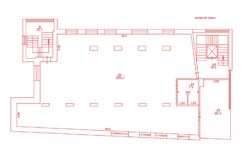
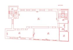
Оренда 4-х поверхової будівлі з підвалом у центрі міста Харкова за адресою: вул. Черноглазівська, 8 Б (колишня Маршала Бажанова ),друга лінія (будівля знаходиться у дворі).
Технічні характеристики: Загальна S- 1314,9 м2,
підвал: 256 м2
1 поверх: 207,7 м2
2 поверх: 276,4 м2
3 поверх: 281,5 м2
4 поверх: 276,4 м2
Поверховість: 4 поверхів та підвал ( експлуатація під укриття); Електрика: за потребою орендаря, Н=4.0 м, 2 вхідні фасадні групи, 2 евакуаційні виходи, підвал ( застосування дпід укриття)
Ремонт за завданням орендаря, у наявності є автономний генератор на випадок аварійного відключення електроенергії на всю будівлю.
Відмінна транспортна розв'язка: м. Архітектора Бекетова (150 м), зупинки наземного транспорту.
Компания АН Европейское