Оренда об'єкта 102.3 м2/ вул. Чорноглазівська (кол.М Бажанова) 8/ м. А. Бекетова 100 м (№ 15-108-820)
Ціна: 1 535 $ + комунальні

Характеристики
Ціна: | 1 535 $ + комунальні |
---|---|
№ об'єкта: | 15-108-820 |
Тип: | торгівельні площі, кафе, бар, ресторан, об'єкт сфери послуг |
Поверх: | 1 / 5 |
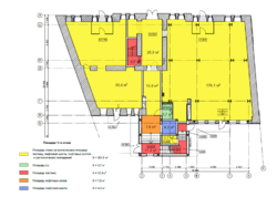
Площа: | 102.3 м2 |
Додатково: | окремий вхід, кондиціонер, парковка |
Адреса: Харківська, Харків, Київський, Нагорний, ул. Черноглазовская, 8, м. Архітектора Бекетова
Оренда об'єкта за адресою: вул. Чорноглазівська , 8 (кол. М. Бажанова)8
Технічні характеристики: S-102.3 м2, червона лінія, фасадний вхід
Етаж: 1/5; Електрика: за потребою орендаря, Н=4.0 м, 2 вхідні фасадні групи.
Ремонт за завданням орендаря, у наявності є автономний генератор на випадок аварійного відключення світла на всю будівлю.
Відмінна транспортна розв'язка: м. Архітектора Бекетова (150 м), зупинки наземного транспорту.
Лояльні умови оренди.
Компания АН Европейское