Оренда об'єкта 187.3 м2/ вул.Чорноглазівська (Бажанова) 8/ м. Архітектора Бекетова 150 м (№ 15-108-821)
Ціна: 2 810 $ + комунальні

Характеристики
Ціна: | 2 810 $ + комунальні |
---|---|
№ об'єкта: | 15-108-821 |
Тип: | торгівельні площі, кафе, бар, ресторан, об'єкт сфери послуг, інше |
Поверх: | 1 / 5 |
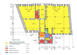
Площа: | 187.3 м2 |
Додатково: | окремий вхід, парковка |
Адреса: Харківська, Харків, Київський, Нагорний, ул. Черноглазовская, 8, м. Архітектора Бекетова
Оренда об'єкта за адресою: вул. Чорноглазівська (колишня Маршала Бажанова ) №8
Технічні характеристики: S-187.3 м2, червона лінія.
Поверх: 1/5; Електрика: потужності за потребою орендаря, Н=4.0 м, 2 вхідні фасадні групи.
Ремонт за завданням орендаря, у наявності є автономний генератор на випадок аварійного відключення світла на всю будівлю.
Центр міста, відмінна транспортна розв'язка: м. Архітектора Бекетова (150 метрів), зупинки наземного транспорту.
Договороспроможний власник, лояльні умови оренди.
Компанія: АН Європейське