Оренда будівлі 2655 м2/ вул. Черноглазівська 8/ м. А. Бекетова 150 м (№ 15-108-822)
Ціна: 21 240 $ + комунальні

Характеристики
Ціна: | 21 240 $ + комунальні |
---|---|
№ об'єкта: | 15-108-822 |
Тип: | торгівельні площі, кафе, бар, ресторан, об'єкт сфери послуг |
Поверх: | 1 / 5 |
Площа: | 2655 м2 |
Додатково: | окремий вхід, кондиціонер, парковка |
Адреса: Харківська, Харків, Київський, Нагорний, ул. Черноглазовская, 8, м. Архітектора Бекетова
Оренда будівлі у центрі міста Харкова за адресою: вул. Черноглазівська, 8 (колишня Маршала Бажанова ), червона лінія.
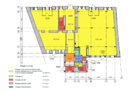
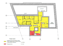
Технічні характеристики: Загальна S-2655 м2,
підвал: 146,26 м2
1 поверх: 364,1 м2
2 поверх: 382,07 м2
3 поверх: 394,85 м2
4 поверх: 394,99 м2
5 поверх: 413,19 м2
мансардний поверх: 358,94 м2
експлуатована покрівля: 200,6 м2
Поверховість: 5 поверхів та експлуатована покрывля; Електрика: за потребою орендаря, Н=4.0 м, 2 вхідні фасадні групи, 2 евакуаційні виходи, підвал ( застосування для укриття)
Ремонт за завданням орендаря, у наявності є автономний генератор на випадок аварійного відключення електроенергії на всю будівлю.
Відмінна транспортна розв'язка: м. Архітектора Бекетова (150 м), зупинки наземного транспорту.
Компания АН Европейское