Оренда приміщення в ТЦ /700.4 м2 / Рост/м.'Центральний ринок' (№ 15-118-676)
Ціна: 140 000 грн. + комунальні

Характеристики
Ціна: | 140 000 грн. + комунальні |
---|---|
№ об'єкта: | 15-118-676 |
Тип: | торгівельні площі, об'єкт сфери послуг |
Поверх: | 2 / 6 |
Площа: | 700.4 м2 |
Додатково: | окремий вхід, парковка |
Адреса: Харківська, Харків, Шевченківський, Центр, Клочковская ул., 58А, м. Центральний ринок
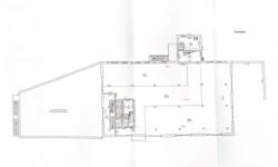
Оренда приміщення в новому торгівельному центрі
Адреса: вул.Кутова 7 (вул.Клочківська, супермаркет 'Рост')
Технічні характеристики: S-700.4 м2, 'червона лінія'.
Поверх: 2/6; Електрика: P=50 КВт/год (380 В).
Опалення та водовідведення централізоване, окремий вхід, сан.вузол, теплі поли, автономне опалення. Вітрини, місце для зовнішньої реклами.
Поруч активна комерційна діяльність: ринок, супермаркети. Активний пішохідний і автомобільний трафік.
Компанія: АН 'Європейське'