Продаж 548 м2/ пр. Героїв Харкова 300 а/ червона лінія (№ 15-119-192)
Ціна: 274 000 грн.

Характеристики
Ціна: | 274 000 грн. |
---|---|
№ об'єкта: | 15-119-192 |
Тип: | торгівельні площі, об'єкт сфери послуг |
Поверх: | 1 / 1 |
Площа: | 548 м2 |
Додатково: | окремий вхід, парковка |
Адреса: Харківська, Харків, Індустріальний, Героев Харькова пр., 300 а, м. Індустріальна
Продаж приміщення
Адреса: Героїв Харкова 300 а
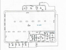
Технічні характеристики: S-548 м2
Поверх: 1/1;
Електрика: P = 85 кВт/год.
Опис: опалення та водовідведення у наявності. 10 паркомісць на фасаді.
Опис локації:
- кількість населення (10-ти хв. досяжності) - 6000 люд.;
- пішохідний трафік (у середньому за добу) - 2000 чол.;
- додаткові джерела транзиту: пішохідний транзит місцевих жителів до зупинок громадського транспорту.
Рядом знаходяться: школи, дитячі садочки, відділення Нової пошти, великий житловий район.
Відмінна транспортна розв'язка: м. Індустріальна (1500 м), зупинки наземного транспорту.
Компанія: АН 'Європейське' тм