Продаж приміщення 41 кв. м. вул Кооперативна 16, Майдан Конституції 150 м. (№ 2-488-146)
Ціна: 50 000 $

Характеристики
Ціна: | 50 000 $ |
---|---|
№ об'єкта: | 2-488-146 |
Тип: | інше |
Поверх: | 1 / 3 |
Площа: | 41 м2 |
Додатково: | окремий вхід, парковка |
Адреса: Харківська, Харків, Основянський, Подол, ул. Кооперативная, 16, м. майдан Конституції
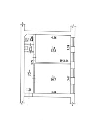
До продажу пропонується офісне приміщення на 1 поверсі 3 поверхового будинку за адресою вул. Кооперативна, 16, метро Майдан Конституції 150 м., загальна площа 41 кв. м. Приміщення має 2 автономні кабінети, санвузол, систему кондиціювання, центральне опалення, паркувальну зону.