Оренда 389,8 м2/ пр. Перемоги 52 д/ червона лінія/ м. Победи 800 м (№ 15-119-191)
Ціна: 194 900 грн.

Адреса: Победы пр., 52Д, Харків, Харківська, Шевченківський, м. Перемога
Характеристики
| Ціна: | 194 900 грн. |
|---|---|
| № об'єкта: | 15-119-191 |
| Тип: | торгівельні площі, об'єкт сфери послуг |
| Поверх: | 1 / 1 |
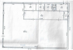
| Площа: | 389,8 м2 |
| Додатково: | окремий вхід, парковка |
Опис
Оренда приміщення
Адреса: пр. Перемоги 52 д
Технічні характеристики: S-389,8 м2
Поверх: 1/1;
Електрика: P = 120 кВт/год.
Опис: опалення та водовідведення у наявності, 10 паркомісць на фасаді.
Опис локації:
- кількість населення (10-ти хв. досяжності) - 12 000 люд.;
- пішохідний трафік (у середньому за добу) - 3000 чол.;
- додаткові джерела транзиту: дзержинський районний суд; харьківський ліцей; дитячий садок.
Рядом знаходяться: школи, дитячі садочки, великий житловий район.
Відмінна транспортна розв'язка: м. Победи (800 м), зупинки наземного транспорту.
Компанія: АН 'Європейське' тм










